Жилой дом в живописном пригороде
закрыть
Проект Жилой дом в живописном пригороде
Местоположение 9 км Байкальского тракта, поселок «Новая Разводная»
Год 2021
Площадь 380

Идеальное место для жизни – тихий, зеленый пригород, где каждый день наполнен спокойствием и гармонией с природой. Именно в таком месте, мы представляем вам комплексный проект, призванный воплотить в жизнь ваши самые смелые мечты о загородном доме.

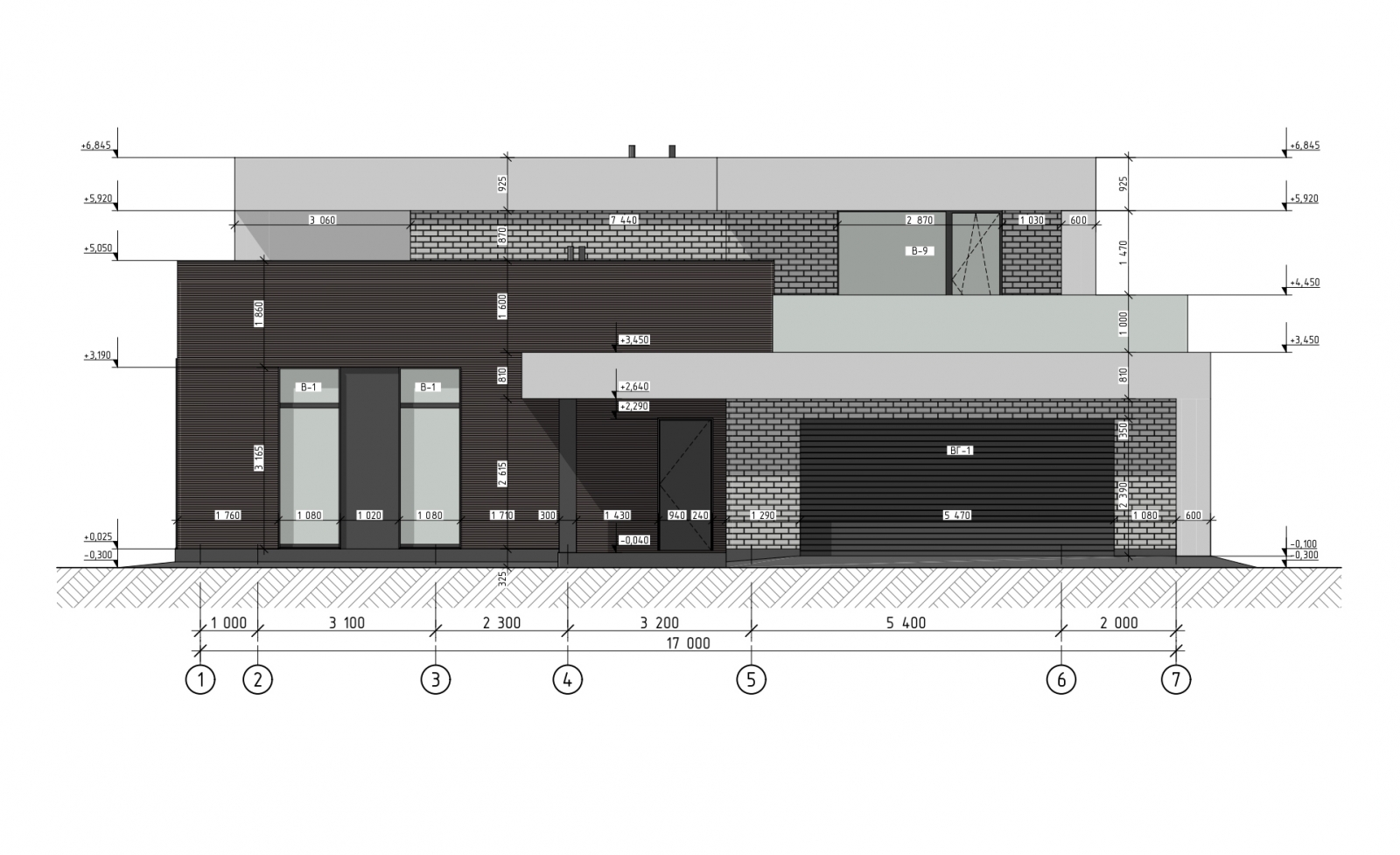
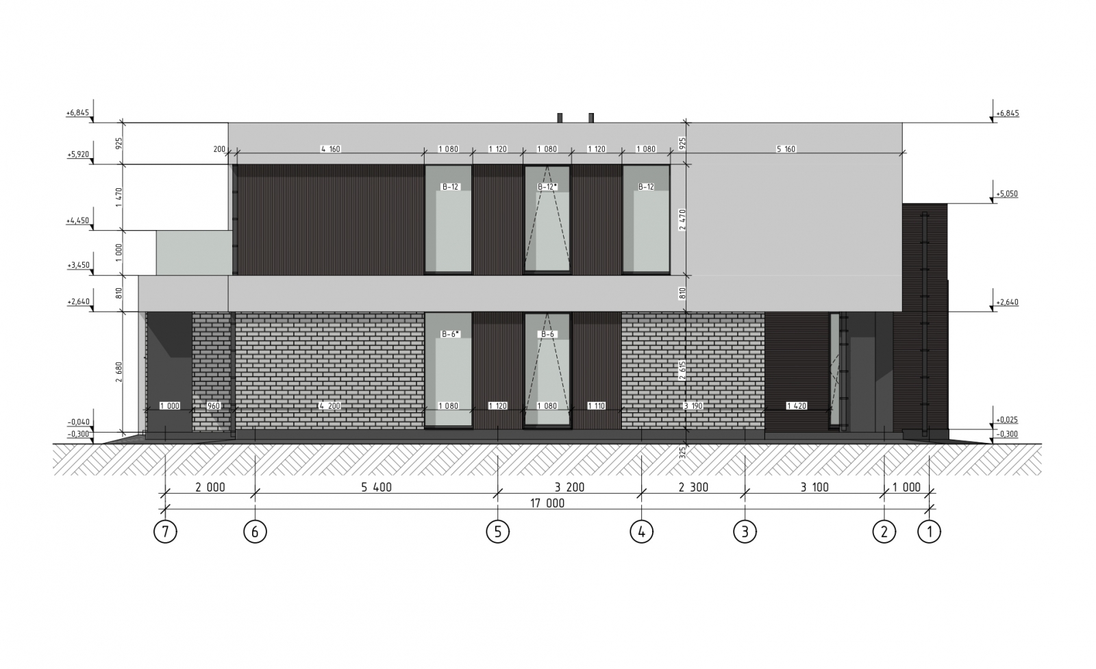
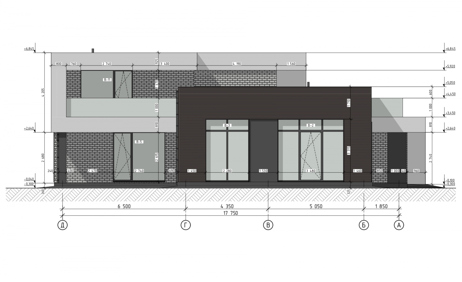
Сердце проекта – просторный и элегантный двухэтажный жилой дом площадью 380 кв.м. Общая площадь включает в себя, 280 кв.м. жилой площади, где вы найдете просторные комнаты, продуманную планировку, здесь хватит места для большой семьи и для приема гостей. Терраса, которая станет любимым местом для утреннего кофе, вечерних посиделок с близкими или просто для наслаждения свежим воздухом и живописными видами.

Но жизнь за городом – это еще и возможность наслаждаться природой, проводить время на свежем воздухе.  Поэтому наш комплексный проект включает в себя уютную баню с прилегающей беседкой, в которой вы найдете зону барбекю.  Проект благоустройства включает в себя продуманное расположение всех зон, создание живописных ландшафтов и, что немаловажно, вертикальную планировку. Это позволит максимально эффективно использовать рельеф участка, создать интересные перепады высот, организовать удобные дорожки, террасы и зоны отдыха, а также обеспечить правильный дренаж и полив.