Дом с банным комплексом
закрыть
Проект Дом с банным комплексом
Местоположение 19 км Байкальского тракта, поселок Ангарский берег
Год 2024
Площадь 400

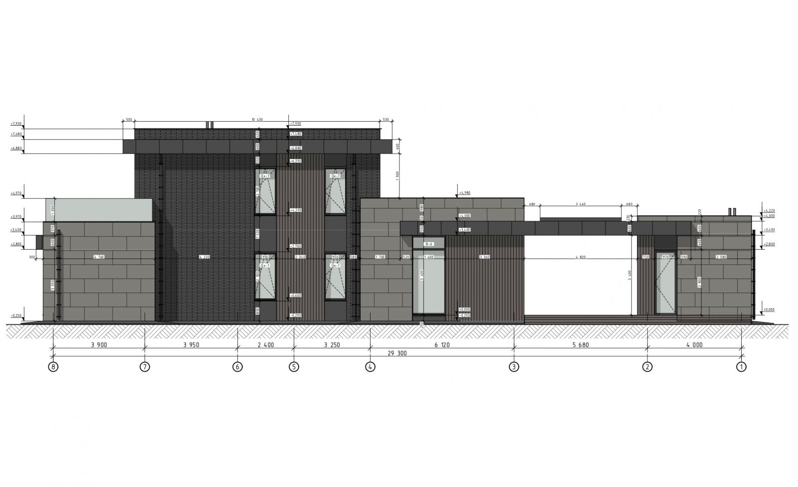
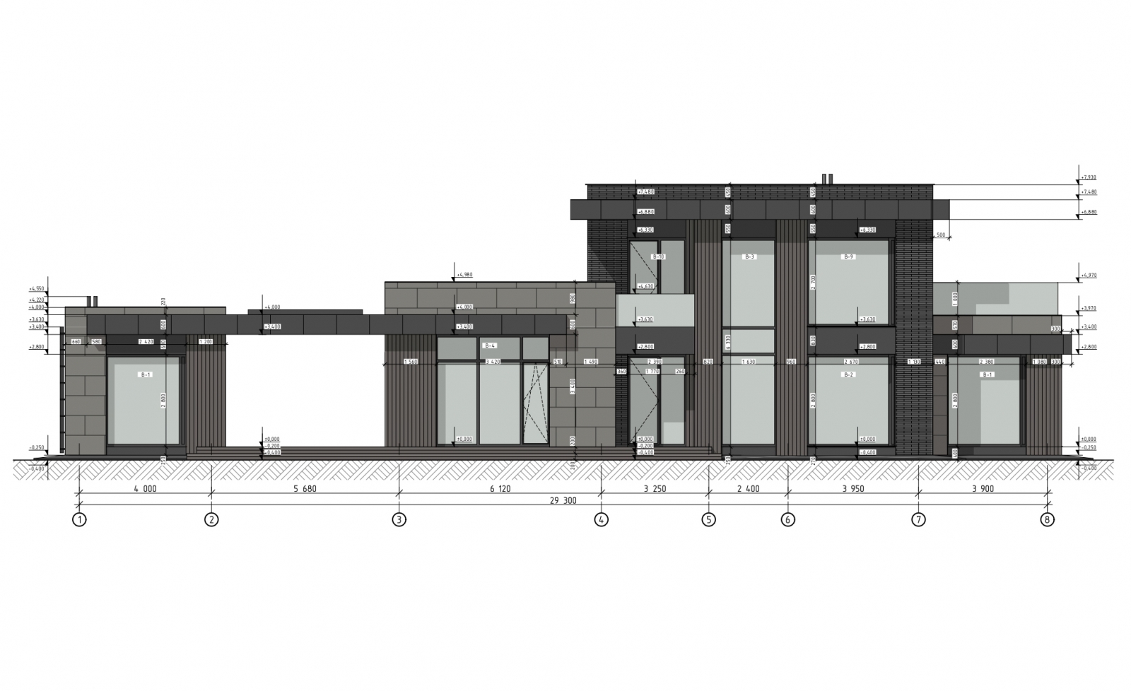
Представляем вашему вниманию проект комплексного проекта общей площадью 400 квадратных метров, который гармонично сочетает в себе жилые зоны и зону отдыха. Основное строение дополнено уютным спа-комплексом, а оба блока объединены просторной террасой, создавая единое пространство для жизни и релаксации.

Планировка дома продумана до мелочей: двухэтажная часть включает в себя комфортную гостевую комнату и две детские. Полутораэтажный блок отдан под просторную гостиную, а одноэтажный мастер-блок предлагает приватность и удобство с собственной гардеробной и ванной комнатой.

Особое внимание уделено естественному освещению и связи с природой: панорамное остекление по всему дому наполняет помещения светом и открывает живописные виды. Из гостиной и спа-зоны на террасу ведут широкие раздвижные порталы. В теплое время года они позволяют буквально "растворить" границы между домом и окружающей средой, визуально объединяя внутреннее пространство с природой.
Терраса, служащая связующим звеном между жилым домом и спа-комплексом, имеет сквозную конструкцию и ведет на задний двор. Здесь предусмотрено специальное место для установки уличной купели, что добавляет еще один уровень комфорта и возможностей для отдыха на свежем воздухе.
Внешний облик дома отличается элегантным сочетанием современных материалов. Фасады украшены плиткой, имитирующей ригельный кирпич, дополненной композитными панелями, планками и фасадной плиткой под натуральный камень, создавая стильный и выразительный экстерьер.