Одноэтажный жилой дом с двухуровневой гостиной
закрыть
Проект Одноэтажный жилой дом с двухуровневой гостиной
Местоположение 6 км Мельничного тракта СК "Зеленый берег"
Год 2024
Площадь 200

Представляем вашему вниманию проект современного каркасного дома площадью 200 квадратных метров, сочетающего в себе функциональность и эстетику.

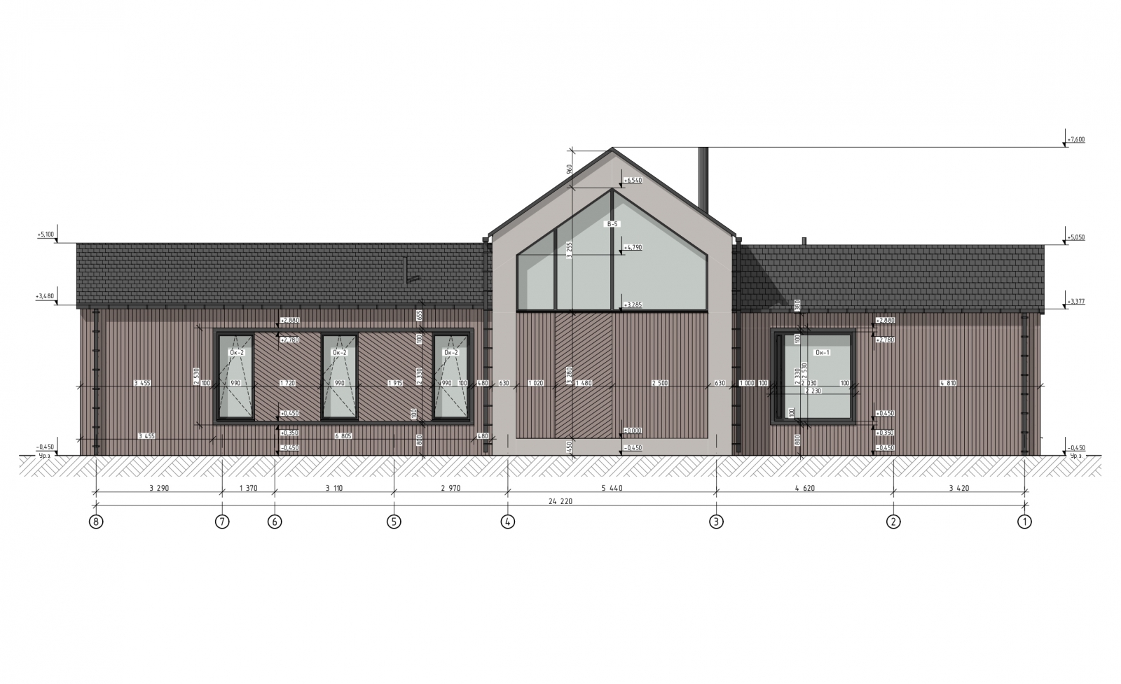
Сердцем дома является просторная гостиная с эффектом второго света, создающая ощущение объема и воздушности. Над кухней, расположенной в центральной части, предусмотрена уютная антресоль с кабинетом, откуда открывается вид через панорамное остекление.

Дом имеет два крыла, отходящих от центрального блока. В левом крыле находится мастер-спальня с собственной ванной комнатой и гардеробной, а также прямой выход на террасу. Правое крыло отведено под детские комнаты и необходимые технические помещения.

Экстерьер дома выполнен с использованием натуральных материалов. Фасады украшены вертикальным деревянным планкеном, дополненным вставками под углом между окнами. Оконные группы акцентированы контрастными графитовыми рамками, а фронтоны отделаны декоративной штукатуркой. Практичная скатная кровля покрыта черной битумной черепицей.

Интегрированное крыльцо и просторная терраса под навесом станут идеальным местом для отдыха и проведения времени на свежем воздухе.