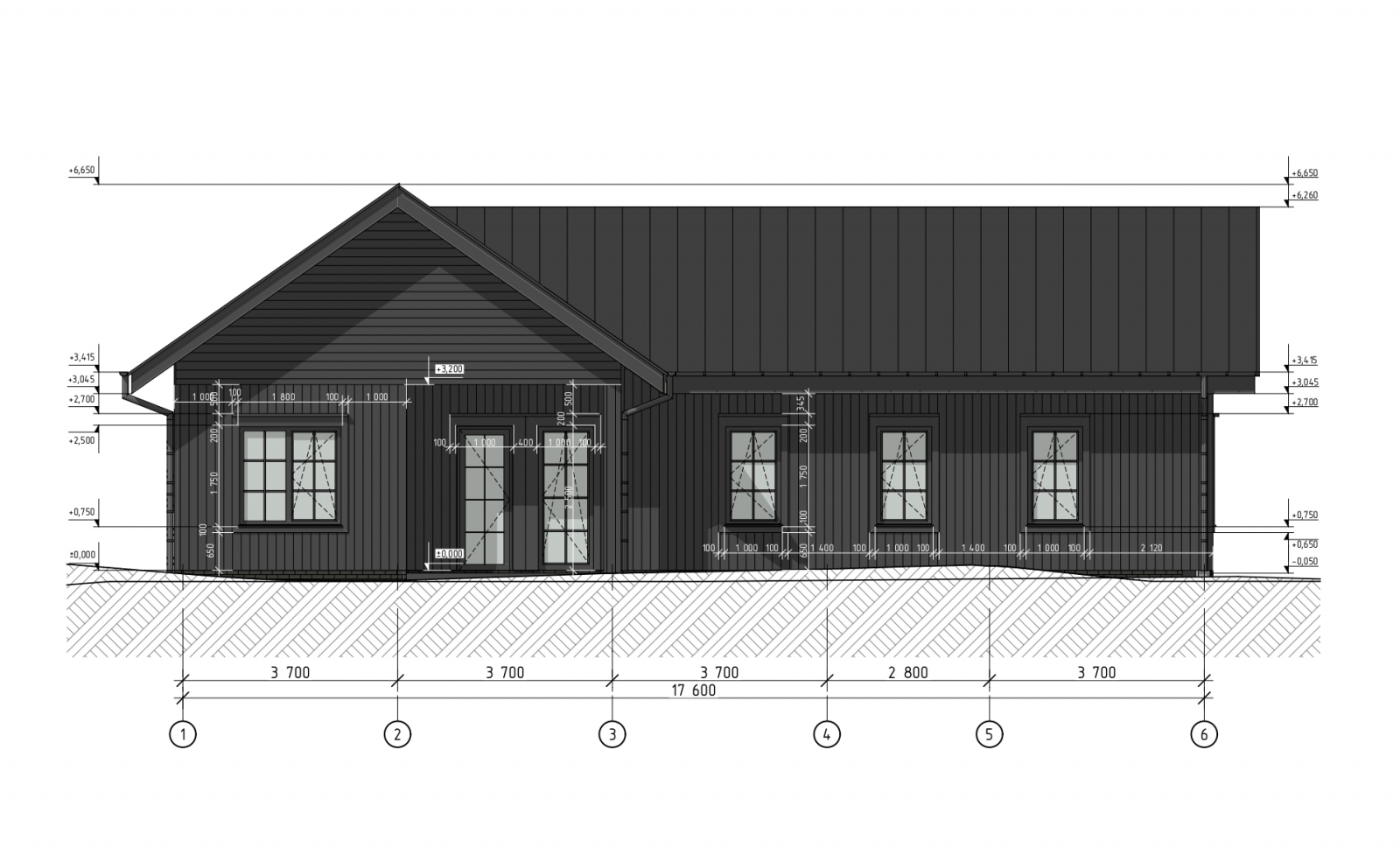
Скандинавский одноэтажный дом
закрыть
Проект Скандинавский одноэтажный дом
Местоположение Московская область, деревня Мыканино
Год 2023
Площадь 207